Italiano
English
Deutsch
699.000 €

NUOVA VILLA SINGOLA IN CLASSE A4

Villa in vendita • Soiano del Lago - via carlo b
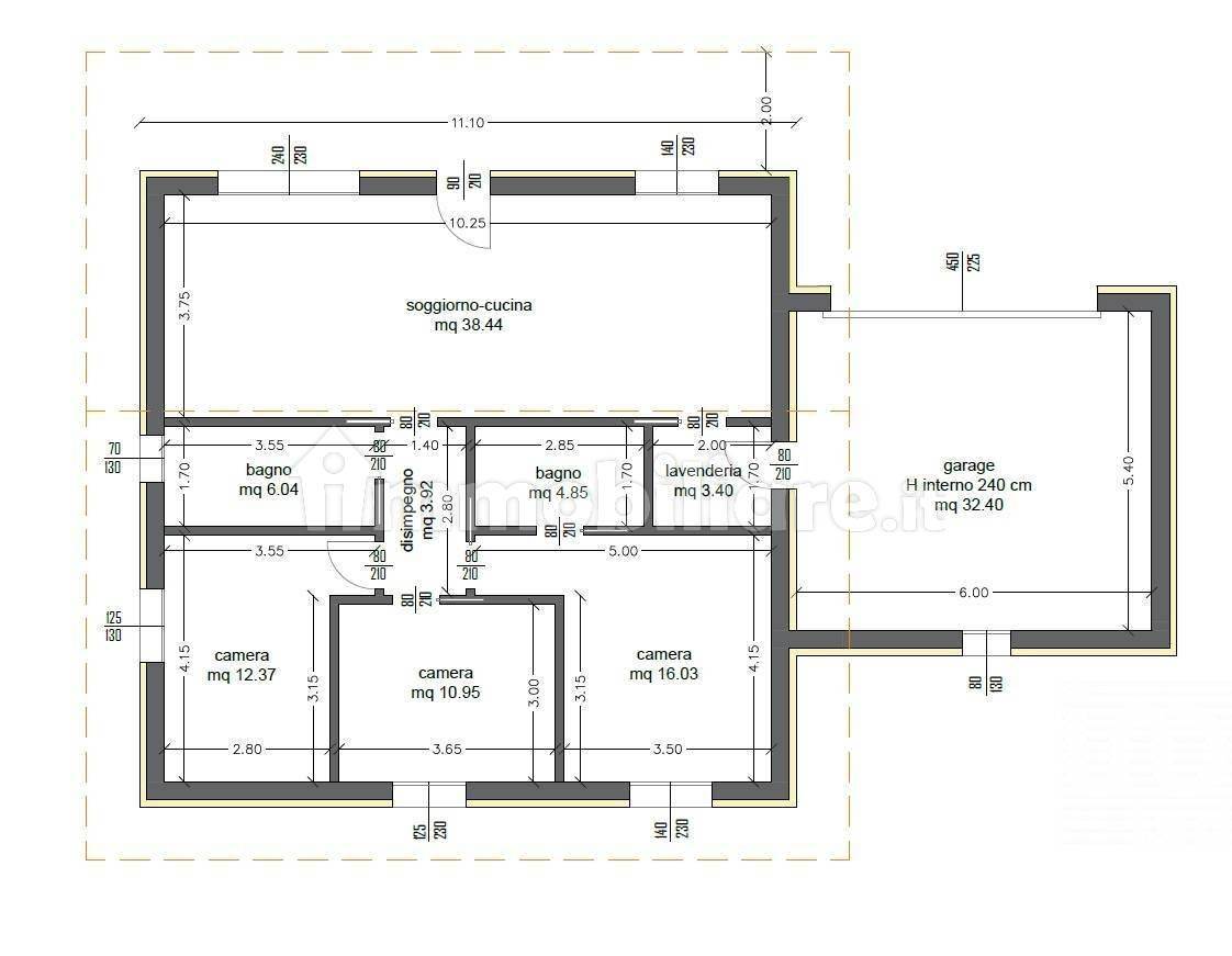
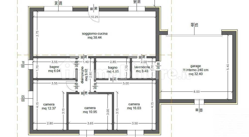
A SOIANO DEL LAGO PROPONIAMO AMPIE NUOVE VILLE SU PIANO UNICO in zona residenziale . La realizzazione prevede Ville singole indipendenti con ampio giardino, completamente elettriche e dotate di impianto fotovoltaico, Ecosostenibile, fortemente isolata in Classe A4 e personalizzabile.
Ogni lotto offre un'area spaziosa per la costruzione della villa, lasciando molto spazio al verde e con la possibilità di aggiungere una piscina su richiesta. Le ville sono progettate con un nuovo concetto costruttivo, garantendo case funzionali, antisismiche e realizzate in tempi rapidi con finiture di eccellenza e alto comfort abitativo. Ogni villa comprenderà un'ampia zona giorno open space con affaccio sul portico privato, cucina abitabile a vista, disimpegno corridio con possibilità di integrare un armadio, tre camere da letto grandi di cui una padronale con il suo bagno privato, una comoda lavanderia e il garage doppio collegato internamente alla casa.
Questa soluzione è ideale per le famiglie che cercano autonomia, efficienza energetica e risparmio.
Eccellente rapporto qualità-prezzo, Ideale per prima casa e investimento, Ottima occasione per chi cerca una villa spaziosa a un prezzo competitivo che unisce una posizione strategica a un costo contenuto.
L'INDIRIZZO RIPORTATO HA IL SOLO SCOPO DI IDENTIFICARE LA ZONA DOVE SI TROVA L'IMMOBILE.
Non esitate a contattarci per maggiori informazioni e per fissare un appuntamento per visionare la Villa Campione.
Caratteristiche principali
Codice
715
Città
Soiano del Lago
Categoria
Villa
Prezzo
699.000 €
Locali
5
Camere
3
Bagni
3
Mq
155
Box
1
Posti auto
2
Terrazzi
1
Piano
Terra
Classe energetica
A4
35
Stato Immobile
Nuovo
Grado
Signorile
Posizione
Lago
Panorama
Vista Aperta
Lati Liberi
4
Giardino
Privato
Arredi
Possibilità
Tipo Soggiorno
Salone
Tipo Cucina
Abitabile
Riscaldamento
Autonomo
Tipo Riscaldam.
Pompa di Calore
Tipo Impianto
Pavimento
Fonte Energetica
Fotovoltaico
Acqua Calda
Autonoma
Raffrescamento
Split
Infissi
PVC Doppio Vetro
Serramenti
Nuovo

Accessori: Antifurto, Aria Condizionata, Cancello Elettrico, Doppi Vetri, Impianto Domotica, Impianto Fotovoltaico, Impianto Satellitare, Lavanderia, Porta Blindata, Ripostiglio, Tapparelle Elettriche, Veranda, Video Citofono

Mappa
via carlo b , Soiano del Lago (BS)
Video
Richiedi informazioni
Invia
Condividi su
Cookie preference